Page suivante
Page précédente
Dijon (21000)

Appartement 4 pièce(s) 2 chambre(s) 116 m²

1
Ascenseur
1
Réf 4155

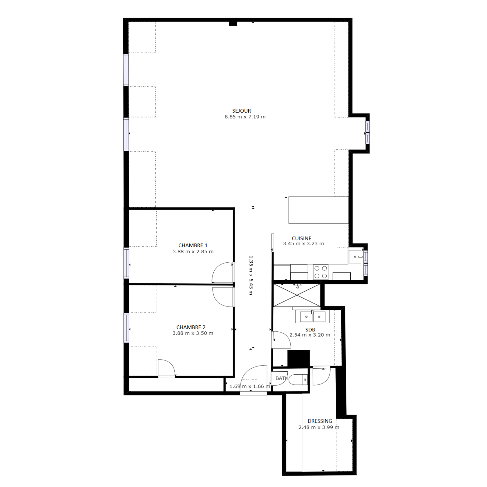
DIJON CENTRE - DIDEROT : Situé au 4e et dernier étage avec ascenseur jusqu'au 3e, ce vaste T4 de 116 m² habitables (88 m² loi Carrez), très calme et très lumineux, offre de superbes vues sur Dijon et de très beaux volumes. Sa pièce de vie de 57 m² dispose d'une cuisine entièrement équipée (réfrigérateur, congélateur, four, hotte aspirante, table de cuisson induction, lave-vaisselle, cave à vins) avec ilôt central. Ses deux chambres côté cour se partagent une salle de douches avec dressing et espace buanderie. Cave et place de parking aérienne sécurisée possible en supplément. Bien soumis au statut de la copropriété (10 lots), charges annuelles payées par le vendeur 2 300 €. Pas de procédure en cours. CE : E. Tel. : 06.81.52.83.68.


Les informations sur les risques auxquels ce bien est exposé sont disponibles sur le site Géorisques

Bilan énergétique

Diagnostics énergetiques
A propos de ce bien Caractéristiques de ce bien
  • Surface 116 m²
  • carrez 88 m²
  • séjour 57 m²
  • 2 chambre(s)
  • 1 salle(s) d'eau
  • construit en 1975
  • cuisine américaine (équipée)
  • Chauffage individuel : panneaux rayonnant (electrique)
  • 1 parking(s)
  • exposition Est-Ouest
  • 1 côté(s) mitoyen(s)
  • 1 niveau(x)
  • 4ème étage
  • 4 étage(s)
  • ascenseur
  • vue Dégagée sur la ville
  • cave
  • interphone

Info copro

Copropriété
  • Copropriété Oui
  • Lot n° 1
  • Nombre de lots 10
  • Quote part annuelle des charges 2 000 €
  • Plan de sauvegarde Non
  • Statut du syndic Pas de procédure en cours

Financier

Informations financières
Les honoraires d'agence seront intégralement à la charge du vendeur  
Charges 98 €
Taxe foncière annuelle 1 666 €

Simulation

Calcul des mensualités
* Champs obligatoires
Charles Damidot Immobilier Agence