Page suivante
Page précédente
Beaune (21200)

Terrain 7 pièce(s) 4 chambre(s) 205 m²

1
2
263 m²
159 000 €
Réf 4609-4

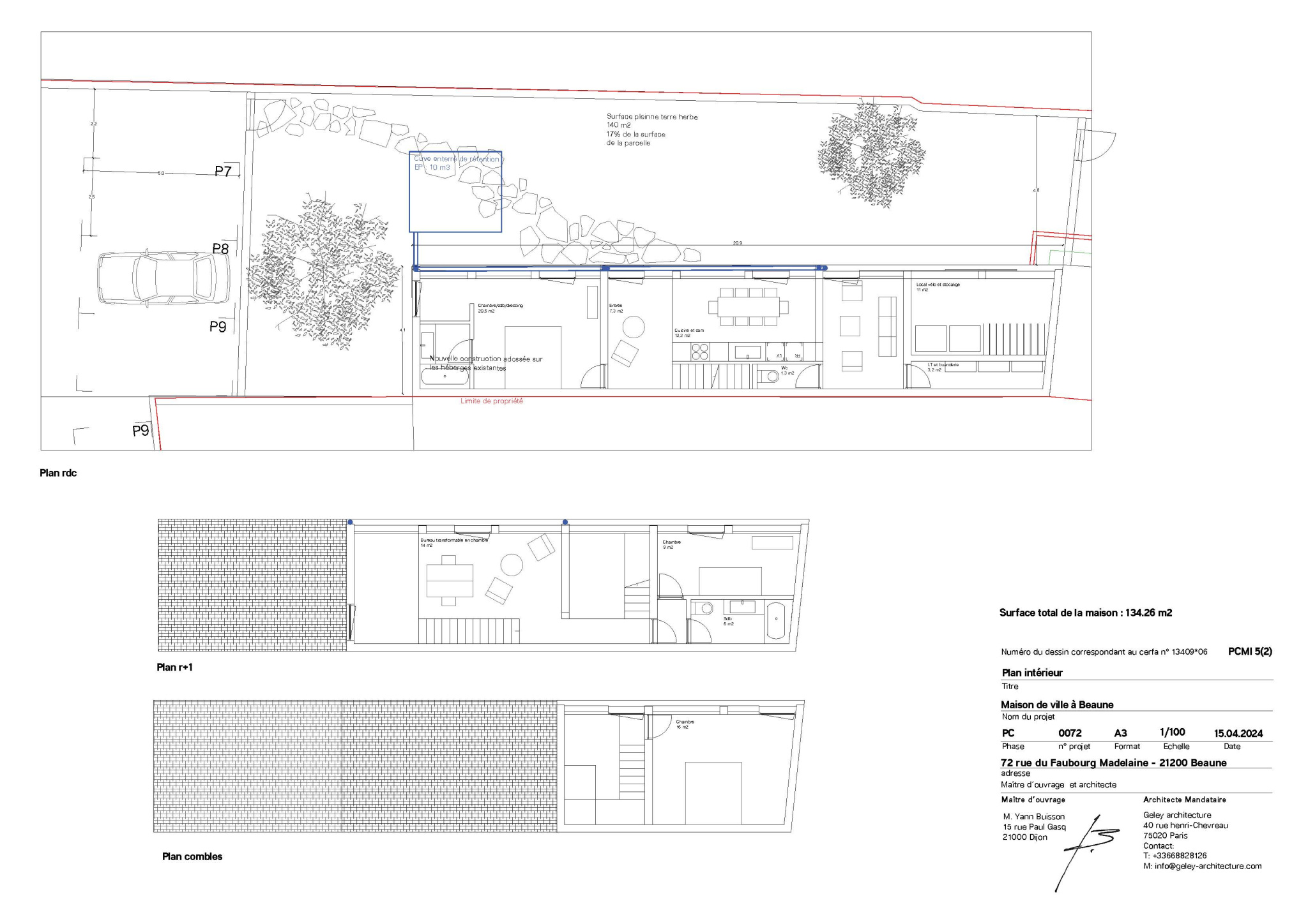
Beaune, à proximité immédiate de la Place Madeleine, terrain à vendre d’une superficie d’environ 236 m², bénéficiant d’un permis de construire purgé de tout recours. Ce projet, conçu par l’architecte parisien Jean- Baptiste Geley, prévoit la réalisation d’une maison contemporaine d’environ 135 m² habitables.bordé par des murs en pierres Elle se compose d’une entrée ouvrant sur un vaste salon-séjour avec cuisine ouverte, prolongé par un jardin exposé sud-ouest, d’une suite parentale de plain-pied avec salle d’eau et dressing, ainsi que d’une buanderie. À l’étage, deux chambres et une salle de bains ; au dernier niveau, une chambre avec sa salle d’eau. L’ensemble est complété par deux places de stationnement. Terrain viabilisé, libre de constructeur, avec possibilité d’accompagnement par l’architecte pour la réalisation du projet. Dossier complet à l'agence n'hesitez pas a conter Mr Damidot au 06.08.85.71.81


Les informations sur les risques auxquels ce bien est exposé sont disponibles sur le site Géorisques
A propos de ce bien Caractéristiques de ce bien
  • Surface 205 m²
  • carrez 136 m²
  • terrain 263 m²
  • séjour 40 m²
  • 4 chambre(s)
  • 1 salle(s) de bain
  • 2 salle(s) d'eau
  • cuisine séparée
  • Chauffage individuel : radiateur (gaz)
  • 2 garage(s)
  • exposition Sud
  • 3 niveau(x)
  • vue sur vieux fontaine
  • terrasse

Composition

Composition de ce bien

Rez-de-chaussée

  • salon/sejour 40 m²

Financier

Informations financières
Prix de vente honoraires TTC inclus 159 000 €
Taxe foncière annuelle 2 000 €

Simulation

Calcul des mensualités
* Champs obligatoires
Charles Damidot Immobilier Agence